Blackstones




La société Blackstones Swiss SA est spécialisée dans la réalisation de plans de travail en granit et en marbre pour les cuisines. Son implantation dans le bâtiment BEEZI lui a permis d’agrandir des bureaux devenus trop étroits et de créer un showroom destiné à mettre en valeur sa gamme de produits.

Date:
Février 2024 – Mai 2024
Client:
Blackstones Swiss SA
Catégorie:
Artisanat et bureau
Mandat:
Planification et contrat ET
Lieu:
Tolochenaz – chemin de Préveyres

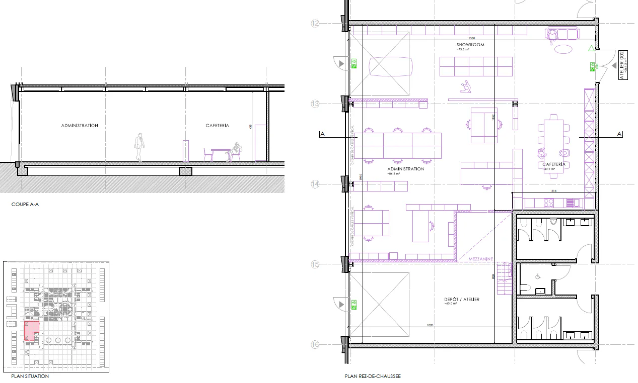
Cette surface d’environ 260 m² est située à l’ouest du bâtiment, au rez-de-chaussée.

Cet emplacement permet le transfert des marchandises vers le local de stockage, où elles sont étiquetées avant d’être envoyées sur les différents chantiers en cours.

L’importante hauteur sous plafond permet un stockage optimal. Elle constitue également un atout pour le showroom, offrant la possibilité d’exposer de magnifiques plaques de marbre pesant jusqu’à 400 kg chacune.

Les ateliers situés au rez-de-chaussée étant dépourvus d’ouvertures pour une aération naturelle, un monobloc de ventilation a été installé en toiture afin d’assurer le renouvellement de l’air dans les bureaux.

La production de chauffage est assurée par l’installation de base du bâtiment. La distribution et la diffusion se font au moyen de panneaux rayonnants, qui permettent également de rafraîchir les locaux durant la période estivale.

Une attention particulière a été portée aux installations électriques, et plus particulièrement à l’éclairage, afin de mettre en valeur les matériaux exposés dans le showroom.

L’aménagement du mobilier, les cloisons en bois et leurs finitions, ainsi que le revêtement de sol de la zone de bureaux, ont été entièrement réalisés par le MO.

20240326_142017
20240514_082740
20240514_092911
20240531_190407
20240531_190404
bytediet-resize
BLST-TOLO
0415056565065